Vente maison à BAYONNE (64100)

Référence : NYQZ-ORO-ADY


749 000

BAYONNE

93 m²

4 pièces

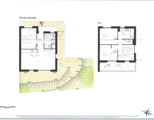
Description du bien

Exclusivité

Coup de coeur garanti pour cette maison de plain pied aux prestations exceptionnelles !Fraichement rénovée, vous ne pourrez qu'être séduits par le degré de finitions, la distribution optimale et des espaces extérieurs séduisants...Le tout sur un secteur apprécié et dans un environnement irréprochable et préservé des regards.Un produit rare, ne tardez pas !Référence agence : 5337

Détails du bien

  • Mandat : exclusif
  • Code postal : 64100
  • Commune : BAYONNE
  • État général : Neuf
  • Surface habitable : 93 m2
  • Nombre de pièces : 4
  • Nombre de chambres : 3
  • Nombre de salle de bain : 1
  • Nombre de parking : 1
  • Cuisine : simple
  • Meublé : oui

Ce bien est proposé par

ORPI COTE BASQUE IMMO

ORPI COTE BASQUE IMMO

9, Boulevard Alsace Lorraine
64100 BAYONNE

05 59 55 75 16
cbi@orpi.com
https://www.orpi.com/cbi/

Nous contacter

Diagnostic de performances énergétiques

Diagnostic de performance énergétique

142 KWhEP/m2/an

Gaz à Effet de Serre

4 Kgéq/CO2/an

Montant estimé des dépenses annuelles d'énergie pour un usage standard : non communiqué.
Date de référence des prix de l'énergie utilisés pour établir cette estimation : non communiqué.

CES BIENS PEUVENT VOUS INTÉRESSER