Vente maison à BAYONNE (64100)

Référence : K7XN-ZUO-DIU


600 000

BAYONNE

99 m²

5 pièces

Description du bien

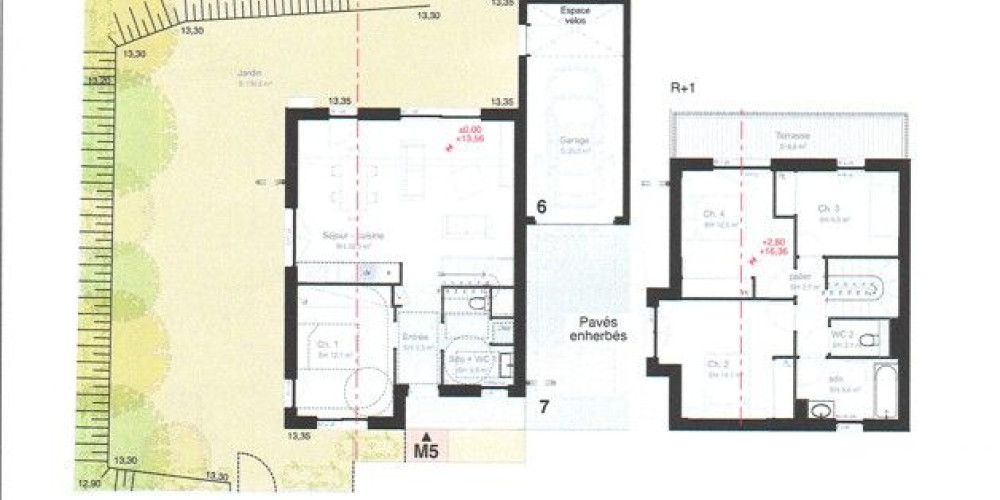
A deux pas du centre ville de Bayonne, devenez propriétaire d'une maison Individuelle neuve à l'architecture moderne et élégante, ou confort et nature se rencontrent.Cette maison T5 en R+2 de 99.5m² avec Garage offre:- Des lignes épurées et des matériaux de qualité- De grands volumes et une luminosité optimale- Une terrasse donnant sur un jardin privatif, parfait pour vos moments de détente- Un cadre de vie calme et durable, à proximité de toutes les commodités.Un bien rare, idéal pour une vie de famille paisible aux portes du centre-ville!Livraison 2ème semestre 2027.Contactez nous pour plus d'informations!

Détails du bien

  • Mandat : simple
  • Code postal : 64100
  • Commune : BAYONNE
  • État général : Neuf
  • Surface habitable : 99 m2
  • Nombre de pièces : 5
  • Nombre de chambres : 4
  • Nombre de parking : 1
  • Cuisine : simple
  • Meublé : non

Ce bien est proposé par

ORPI - AGENCE DES ARENES

ORPI - AGENCE DES ARENES

19 AVENUE DUBROCQ
64100 BAYONNE

05 59 59 22 36
agencedesarenes@orpi.com
http://www.agencedesarenes.com

Nous contacter

CES BIENS PEUVENT VOUS INTÉRESSER