Vente maison à HENDAYE (64700)

Référence : 3455


508 000

HENDAYE

90 m²

4 pièces

Description du bien

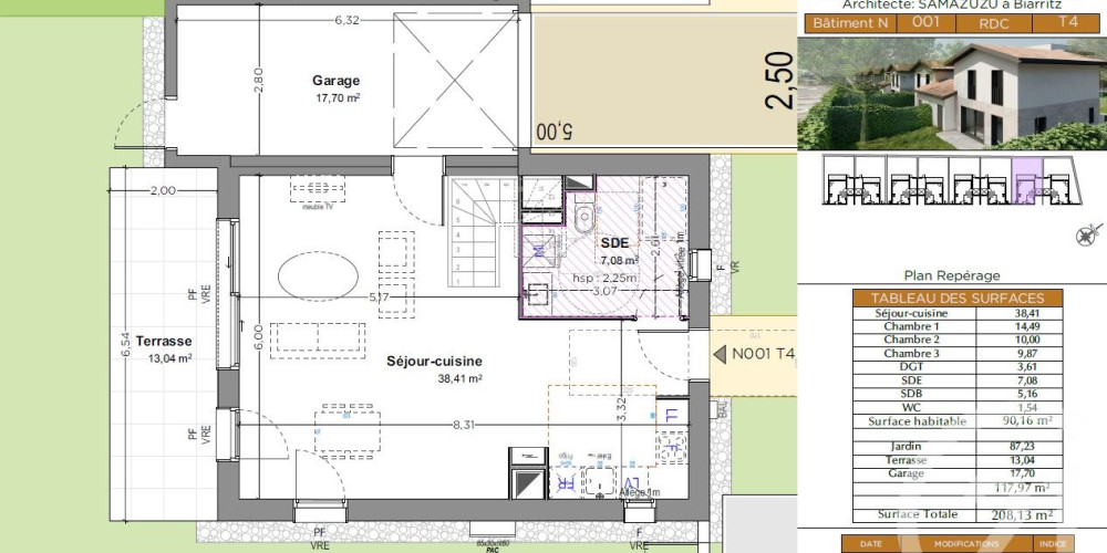
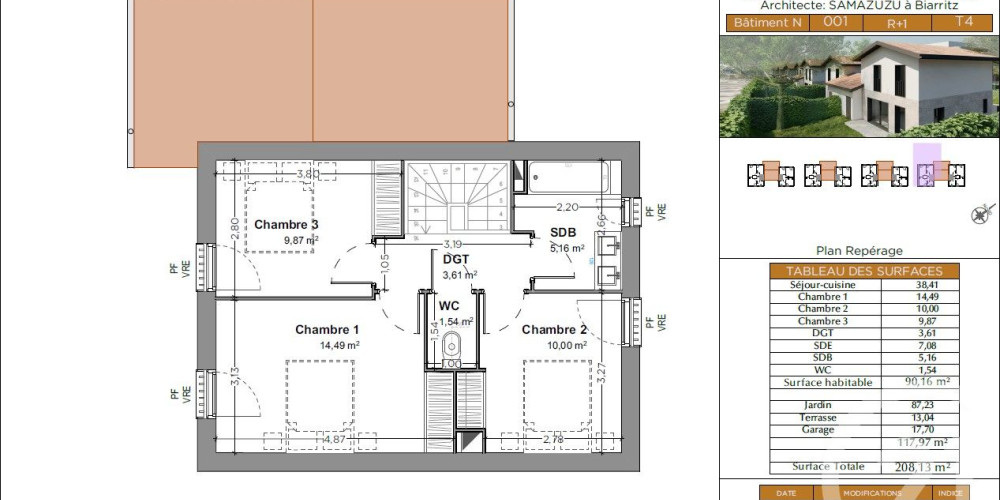
Hendaye, hauteurs plage, au sein d'un programme immobilier neuf de qualité RE 2020, maison mitoyenne sur deux étages de type 4 pièces avec garage et jardin privatif d'environ 100 m² . br/>Elle se compose en rdc d'un vaste séjour avec espace cuisine et une salle d'eau avec WC .br/>A l'étage, trois grandes chambres avec placard, une salle de bain et un WC .br/>Une magnifique terrasse pour profiter de belles vues sur les sommets sublime ce bien d'architecture moderne, avec des matériaux de qualité, pour un logement performant en consommation d'énergie .br/>Livraison prévue premier semestre 2027 .br/>Opportunité rare sur le secteur ! Prix : 508000.0 euros, Honoraires charge vendeur. Bien proposé par Nicolas BERTIERE EI, agent commercial (RSAC 901459750)

Détails du bien

  • Mandat : simple
  • Code postal : 64700
  • Commune : HENDAYE
  • Surface habitable : 90 m2
  • Nombre de pièces : 4
  • Nombre de chambres : 3
  • Nombre de salle de bain : 1
  • Nombre de parking : 1
  • Meublé : non

Ce bien est proposé par

CENTURY 21 - MAITENA IMMOBILIER

Nous contacter

CES BIENS PEUVENT VOUS INTÉRESSER